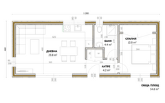
Конструкция - къща 4.60x12.00m (55m²)

Kонструкция за къща с размери 4.6 метра ширина и 12 метра дължина, с обща площ 55 квадратни...
€5.650,00 EUR
€5.650,00 EUR

Kонструкция за къща с размери 4.6 метра ширина и 12 метра дължина, с обща площ 55 квадратни метра. Изработена от студено огънати C-образни профили.

Основни параметри:

  • Широчина: 4.6 метра
  • Дължина: 12 метра
  • Площ: 55 кв.м
  • Тегло на конструкцията: 1530 кг
  • Покрив: Двускатен

Материали:

  • Профили: Студено огънати C-образни профили, изработени от галванизирана конструктивна стомана S350 с минимално покритие от 275 г/кв.м.
  • Връзки: Поцинковани стоманени поп-нитове с диаметър 4,8 мм за максимална здравина.

Възможни покривни покрития:

  • Покривни сандвич панели;
  • LT ламарина;
  • OSB плоскости с битумни керемиди;

Опции за основа:

  • Земни анкери (винтове)
  • Ивичен или стоманобетонен фундамент

Гъвкави възможности за персонализация:

Размерите на конструкцията могат да бъдат променяни според вашите нужди. Възможност за добавяне на прозорци, врати и други отвори.

Включено в цената:

  • Изработка на конструкцията във вид на профили, готови за сглобяване
  • Всички крепежни елементи (поп-нитове, винтове, планки и др.)
  • Подробни монтажни планове и работни чертежи

Забележка: В цената не е включен фундаментът и неговото изграждане.
Посочените цени са с ДДС.

ПОСЛЕДНО РАЗГЛЕДАНИ